Bramois, charmant appartement de 4.5 pièces de 95 m2 au cœur du vieux village avec place de parc

rue du Vieux-Village 15, 1967 Bramois

CHF 390'000.-
1
2
3
4
5
6
7
8
9
10
11
12
13
14
15
16
17
    17 photos     OpenStreetMap     Fichier ou plan   
  • Prix de vente : CHF 390'000.-
  • Surface habitable : ~ 95 m²
  • Disponible : A convenir

Description

Au 1er étage d’une bâtisse en colombage au caractère unique datant du XVIIème siècle, ce charmant appartement de 4.5 pièces, d’une surface de 95 m2, se situe à la rue du Vieux-Village 15 à Bramois (Commune de Sion).

Implanté au cœur du vieux-village de Bramois, sa localisation est idéale à la porte de la ville de Sion : vous profitez à la fois de la proximité immédiate des commerces et de l’autoroute, tout en bénéficiant d’un environnement calme, verdoyant et familial. Toutes les commodités se trouvent à moins de 5 minutes à pied : école primaire, UAPE, jardin public, épicerie, poste, pharmacie, etc. Une ligne de bus ainsi qu’une piste cyclable permettent de rejoindre le centre-ville de Sion en moins de 10 minutes.

Ce bien séduit par sa belle hauteur sous plafond, ses volumes généreux et son atmosphère chaleureuse. Les espaces sont lumineux et la distribution des pièces est fonctionnelle. Le séjour, orienté sud-est bénéficie d’un bel ensoleillement. L’espace nuit comprend trois chambres ainsi que d’une salle d’eau avec une douche et une baignoire.

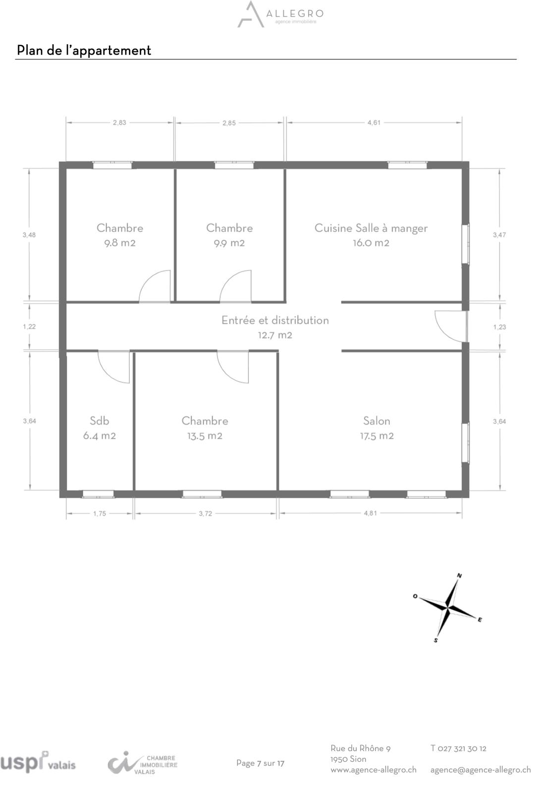
Pour une surface habitable brute de 95.7 m2, l’appartement est organisé de la manière suivante en considérant les surfaces habitables nettes (=balayables) :

  • Une entrée/hall de distribution de 12.7 m2,
  • Une cuisine/salle à manger de 16 m2,
  • Une chambre parentale orientée sud avec armoire intégrée de 13.5 m2,
  • Deux chambres enfant orientées nord, de respectivement 9.9 m2 et 9.8 m2,
  • Une salle d’eau avec douche et baignoire de 6.4 m2,
  • Une cave de 27 m2.

Le bien comprend également une place de parc extérieure non-couverte.

A noter que l’appartement est actuellement loué 1'550.- CHF/mois et qu’il constitue un objet de rendement intéressant (calcul détaillé à la demande).

Points forts :

  • à proximité de toutes les commodités
  • Quartier calme et verdoyant
  • Beaux volumes et ensoleillement
  • Charme et authenticité

Tout afficher

Détails


  • Pièce(s) : 4.5
  • Chambre(s): 3
  • Salle(s) d'eau: 1
  • Niveau: 1. Etage
  • Catégorie : Appartement
  • Réf. : 2183

 A proximité


 Environnement


 Extérieur


 Intérieur


 Ensoleillement et vue


Situation géographique

Voir en Street View    Voir sur Google Maps