Saxon, lot de 2 immeubles de rendement, 11 appartements, 1 restaurant, 1 commerce, 9 pl. de parc

Rue de Gottefrey 29, 1907 Saxon

CHF 3'500'000.-
1
2
3
4
5
6
7
8
9
10
11
12
13
14
15
16
17
18
    18 photos     OpenStreetMap     Fichier ou plan   
  • Prix de vente : CHF 3'500'000.-
  • Disponible : A convenir

Description

Ce joli lot de deux immeubles, construits respectivement dans les années 1930 et 1970, se situent au cœur du village de Saxon à la rue Gottefrey 29a et 29b. Bien entretenu et rénové au fil des années, chaque bâtiment compte 3 étages. Le rez-de-chaussée accueille des commerces, dont un magasin, un restaurant et un salon de coiffure. Les étages sont occupés par des appartements de 1.5 pièces à 4.5 pièces. Ce bien dispose également de galetas et de caves dans les combles ainsi que d’un carnotzet au rez-inférieur.

Le village de Saxon séduit par son cadre de vie paisible et ensoleillé, au cœur du Valais. La commune bénéficie d’une situation idéale, proche des axes de transport et des villes principales, tout en restant entourée de nature. On y trouve toutes les infrastructures utiles au quotidien (école primaire, crèche, UAPE, poste, banques, pharmacie, cabinets médicaux et dentaires, terrain de football, etc.), ainsi qu’une vie locale dynamique.

Par leur situation centrale et la diversité de leurs usages, ces immeubles participent pleinement à la vie du village et se trouve proche de toutes les commodités. Les différents lots s’articulent de la manière suivante :

Gottefrey 29a

Niveau +2 :

  • 1 appartement de 3,5 pièces de 60 m2 de surface habitable,
  • 1 appartement de 4,5 pièces de 100 m2 de surface habitable,
  • 1 appartement de 4,5 pièces de 90 m2 de surface habitable,

Niveau +1

  • 1 appartement de 4 pièces de 60 m2 de surface habitable,
  • 1 appartement de 4,5 pièces de 90 m2 de surface habitable,

Niveau 0 :

  • 1 salon de coiffure de 60 m2 de surface habitable,
  • 1 local commercial de 33 m 2 surface habitable,
  • 1 restaurant de 145 m 2 surface habitable,

Niveau -1 :

  • 1 carnotzet/dépôt de 1 pièces de 55 m2 de surface habitable

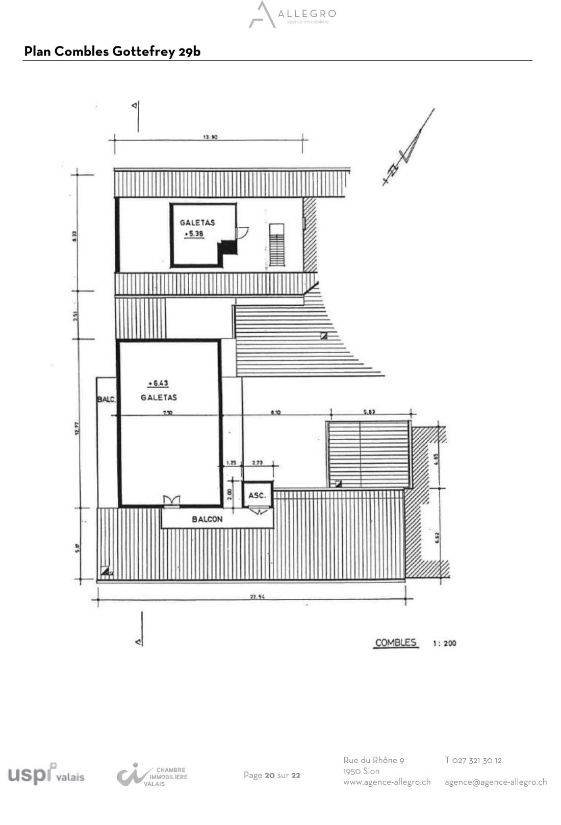
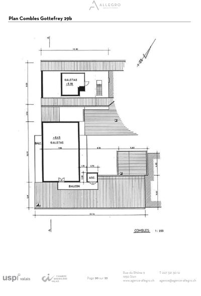
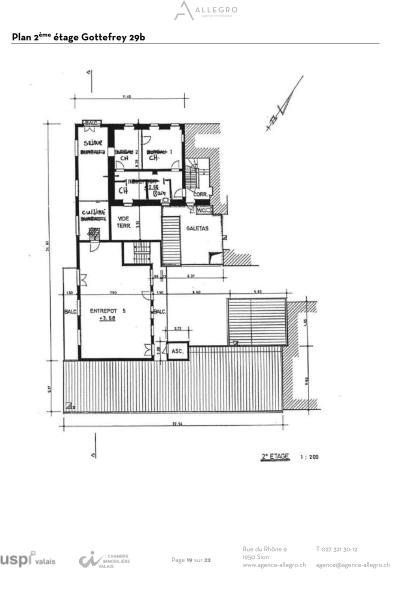
Gottefrey 29b

Niveau +3 :

  • 1 appartement de 3,5 pièces de 60 m2 de surface habitable,

Niveau +2 :

  • 1 appartement de 4,5 pièces de 80 m2 de surface habitable,

Niveau +1

  • 1 appartement de 4.5 pièces de 80 m2 de surface habitable,
  • 1 appartement de 1,5 pièces de 30 m2 de surface habitable,

Niveau 0 :

  • 1 appartement de 1.5 pièces de 30 m2 de surface habitable,
  • 1 appartement de 1,5 pièces de 25 m2 de surface habitable,

Des galetas et des caves composent les combles de chacun des immeubles.

9 places de parcs dont deux visiteurs et l’une dédiée au restaurant font également parties du lot.


Points forts :

  • Petits immeubles
  • Bon rendement
  • Excellente situation au cœur du village
  • Mixité des usages

Tout afficher

Détails


  • Catégorie : Immeuble de rendement
  • Réf. : 2173

 A proximité


 Environnement


 Extérieur


 Intérieur


Situation géographique

Voir en Street View    Voir sur Google Maps